
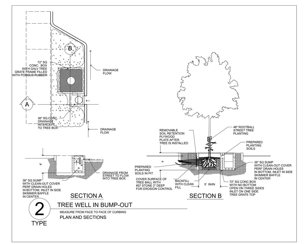
These tree wells were conceived of by TTDG to manage and redirect the stormwater into watering the street trees on Columbus Drive. The project is a City of Tampa Complete Streets Program. It included adding the bump outs to the existing three lane Columbus Drive and converting it to two lanes with on-street parking. The tree wells were added along with parallel parking to slow traffic and create u

Project required close coordination between civil engineer and Landscape Architect along with City of Tampa engineer approval to archive the positive results for the stormwater system improvements.

One side of Columbus Dive has Cypress Trees. Concept is the same for stormwater intercept and watering. Under sidewalk are structural soils. Tree box has opening to allow roots to grow under walk.
Opposite side of road has Palms due to 25' setback from overhead powerlines. Concept is the same for stormwater intercept and watering. Under sidewalk are structural soils. Tree box has opening to allow roots to grow under walk.
Installation of Tree Wells showing intercept box for street debris and oils and then overflows into planter box and out the other side during heavy rainfall.
Graphic showing bump outs in Columbus Drive with tree planter additions to create a complete streets program and parallel parking.
Consruction of the tree wells - note the depth of the installed tree to allow for the stormwater to flow though the box.
Terra Tectonics design group, Inc.
1188 Kapp Drive, Clearwater, Florida 33765, United States